Freie Eigentumswohnung im Brunnenviertel – Berlin-Mitte

Bearbeitungsnr.

BRU168WE05

41 m²

Wohnfläche

Kaufpreis

295.000 €

Preise & Kosten

Kaufpreis

295.000 €

Wohngeld

209,01€ pro Monat

Provision

3,57% Käufer-Provision vom Kaufpreis inkl. 19% MwSt.

Allgemein

Ort

10119

Straße

auf Anfrage

Wohnfläche

41 m²

Zimmer

2

Bad

Bad mit Wanne, Bad mit Fenster

Küche

Ja, Einbauküche

Boden

Parkett, Teppichware, Fliesen

Lage

1. OG

Verfügbar ab

Frei ab 01.11.25

Energie

Heizungsart

Zentralheizung

Energieträger

Gas

Energiewert

99 kWH/(m²a), Energieeffizienzklasse c

Ausstattung

  • Keller
  • Badewanne
  • Küche mit EBK

Haus

Haustyp

Altbau

Baujahr

1920

Etagen gesamt

4

Beschreibung

In sehr beliebter Lage, im Brunnenviertel in Berlin-Mitte bieten wir hier eine ab Ende Oktober freiwerdende 2 Zimmerwohnung im Seitenflügel eines Mehrfamilienhauses mit 12 Wohneinheiten und einer Gewerbeeinheit – aufgeteilt in Vorderhaus und Seitenflügel mit angelegtem Innenhof.
Die Wohnung war bis jetzt vermietet und wird zu Ende Oktober frei. Das Wohngeld beträgt aktuell 209,03€ im Monat (inkl. Instandhaltungsrücklage).

Der Hauseingangsflur wurde kürzlich renoviert und mit neuen Fliesen zu versehen. Die komplette Heizungsanlage wurde am Anfang 2025 getauscht.

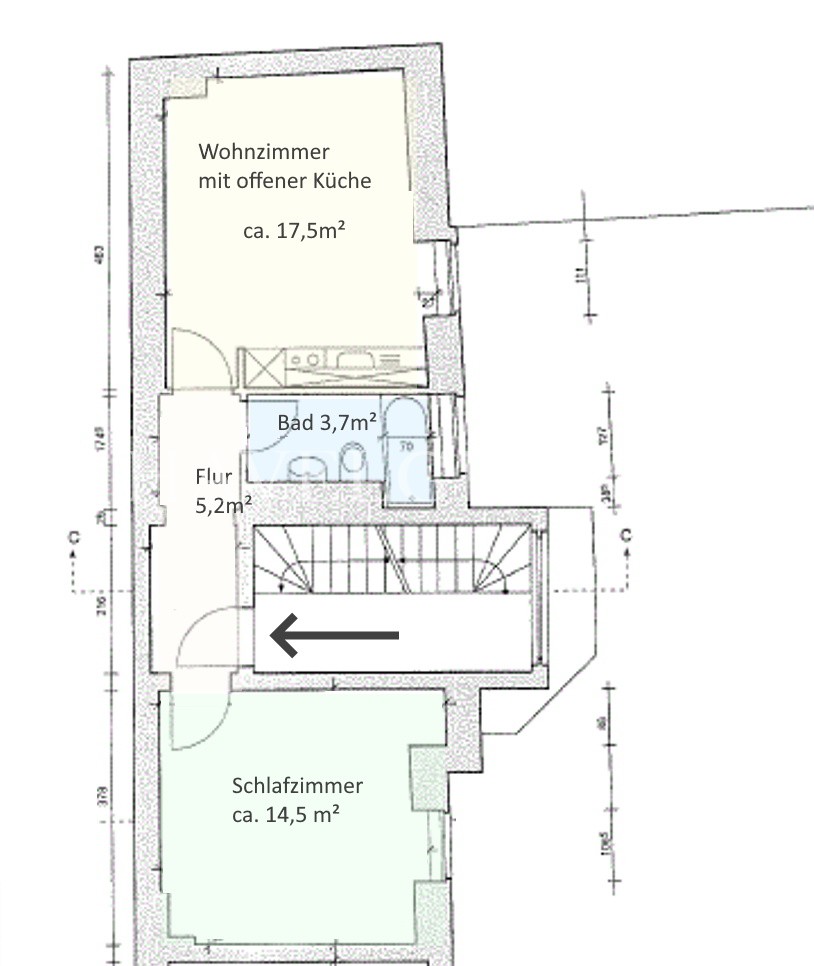
Die Wohnung ist schön geschnitten. Gleich vorn am Eingang links befindet sich das Schlafzimmer von fast 15m² Größe. Nach rechts geht das Wohnzimmer mit offener Küche, ausgestattet mit Einbauküchenzeile (z.B. Kühlschrank mit Gefrierfach, Induktionskochfeld). Das Bad ist hell gefliest und mit Badewanne und Fenster ausgestattet.

Wir bitten zu beachten, dass wir für die Vereinbarung von Besichtigungsterminen ca. 1 Woche Vorlaufzeit benötigen.

Lage

Berlin-Mitte hat sich in den letzten Jahren, wie kaum ein anderer Bezirk Berlins, verändert.

Hier ist die kreative Szene Berlins zu Hause. Restaurants neben Galerien und Buchläden sowie viele kleinere Inhabergeführte Geschäfte machen diese Wohnlage so quirlig und lebendig. Umgeben von wunderschönen Altbaustraßenzügen, z.B. rund um den Zionskirch- und den Arkonaplatz mit Kiezleben, Flohmarkt, tollen Straßen-Café – erwartet Sie hier ein abwechslungsreiches Wohnumfeld. Wenige Gehminuten entfernt befindet sich der Mauerpark, sowie der nahegelegene Volkspark mit seinen beliebten Liegewiesen und bunten Cafés und Restaurants rundherum. Die vorhandene Infrastruktur mit zahlreichen öffentlichen Verkehrsverbindungen wie U-Bahn-Linien, Tram und Bus ermöglichen ein schnelles Erreichen aller anderen Berliner Stadteile.
Öffentliche Verkehrsmittel:
U-Bahnhof Bernauer Straße: 6 min. Fußweg
U-Bahnhof Rosenthaler Platz: 5 min. Fußweg
Tramlinien 12, M8
Bus N8, N40

Jetzt anfragen!

Bitte beachten Sie, dass wir Ihnen nur weitere Auskünfte geben können, wenn Sie Ihre Anschrift und korrekten Kontaktdaten angeben.